Shop Drawings & Supplies Estimating Services

From Concept to Construction — Accurate Estimates Every Step of the Way.

Shop Drawings & Supplies Estimating Services

At Bid Breakdown LLC, we provide accurate and detailed shop drawings and supply estimates to help contractors, fabricators, and builders turn designs into reality. Our experienced team combines technical expertise with precision software to deliver clear, construction-ready documentation and cost analyses that support efficient execution and budget control.

Tiling Shop Drawings & Estimates

We create precise tiling shop drawings and material takeoffs, detailing layouts, patterns, and transitions for walls, floors, and specialty areas. Each estimate includes grout, adhesives, trims, and waste factors — ensuring exact ordering and flawless installation.

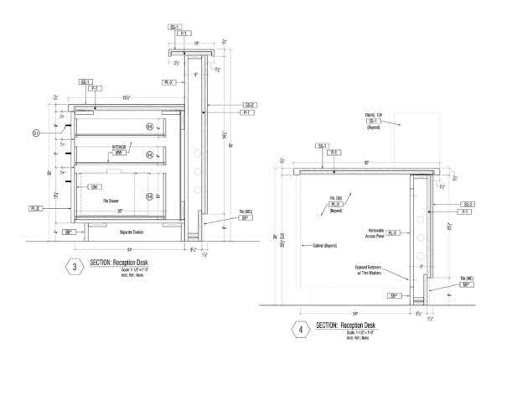
Millwork & Countertop Shop Drawings

Our millwork and countertop shop drawings capture every custom detail, from cabinetry and casework to stone or solid surface countertops. We provide supply estimates for panels, edging, hardware, and finishes, ensuring seamless fabrication and installation.

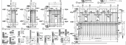
Rebar Shop Drawings & Takeoffs

We prepare rebar shop drawings with bar bending schedules, placement details, and quantities based on project specifications. Our precise takeoffs help optimize steel procurement, reduce waste, and ensure compliance with structural requirements.

Bid Breakdown delivers shop drawing and supply estimates that enhance coordination, accuracy, and project profitability — from design to delivery.

Lets Start Your Project